2019.12.05建築

21世紀世界の先端建築を渉猟する 第20回
Ranging Over the 21st Century World Architecture (#20)

淵上正幸(建築ジャーナリスト) / Masayuki Fuchigami(Architectural Journalist)

ウェスレイヤン・ハウス・メソディスト国際教会(香港、ワンチャイ)
Wesleyan House Methodist International Church(Wan Chai, Hong Kong)

交差点の向かいから全景。頂上に向けてわずかにテーパーしていくスリムな垂直形の教会。

喧騒極まる香港都心に建つ垂直教会

ワンチャイといえば、誰もが知る香港切っての繁華街。「ウェスレイヤン・ハウス・メソディスト国際教会」は、喧騒渦巻くワンチャイにできた祈りのための聖なる教会空間だ。敷地はクィーンズ・ロード・イーストとケネディ・ロードの交差点のコーナー部に位置し、建物はティアドロップ形のたいとな敷地の上にある。延床面積11,000㎡のプログラムを800㎡の敷地にフィットさせるためには、当然高層タイプに成らざるを得なかった。
 
したがって教会は垂直教会となり、サンクチュアリィ、チャペル、アクティビティ・ホーム、社会福祉フロア、それに牧師オフィスを、細く高いタワーの中に巧みに取り組んでいる。建物は宗教建築としてのイメージを出すために、基壇から頂上まで緩やかにテーパーしていくシルエットを描き、近隣スカイラインに異形のフォルムを表出させている。
 
完成したスカイスクレイパー・チャペルは、極上の礼拝スぺ—スを提供。つまりタワー最上階のスカイ・チャペルからは、北側のハーバーや南側の山々のワイドな景色が楽しめる。配慮の行き届いた内部空間デザインにより、教会業務に支障をきたさない最適な空間構成となっている。
 
大きな会衆ホールがメインのチャペルの上部にあり、参拝者のサービスが終了次第、ここに集うようになっている。教会オフィスと牧師の住まいは隣接する垂直フロアに配されている。つまり公的部分と私的部分が異なるアイデンティティーを保持しつつ、両者の間のイージー・アクセスが可能になっている。
 
外部デザインでは、喧騒に満ちたストリートから静かな聖域への移行プロセスであるエントリー・シークェンスがスムースだ。緩やかにカーブするファサードはクィーンズ・ロード・イースト沿いに柔和な姿を現わし、他方ストリートからは教会の開放されたパブリック・プラザへとビジターを呼び込んでいる。このパブリック・プラザは、都市から内部の静穏な聖域へのトランジット・ゾーンだ。それは歩行者によるふたつの道路間の行き来を助けるヒンジ的役割をし、クライアントから要望されていた公的な集合スペースを提供している。
 
種々の空間が、ストリートから1階のパブリック・プラザや礼拝堂まで続く流れを構成している。ビジターはカリヨン(鐘楼)からの音楽を聞きながら、歴史的な石壁、生命の木、木ねんプラークの横を通り、礼拝へのムードを高めていく。2階にあるメイン・チャペルは、控えめな材料と色彩を使用。静穏かつ荘厳な礼拝空間を創造するために、祭壇は背景を高さ8mの白い曲面壁として十字形の開口部を穿ち、自然光がトップライトより降り注ぎ、清澄な雰囲気を演出している。
 
建物はいくるかのイノヴェティブな環境サステイナビリティの特徴をもっており、香港の”ビーム+・サステイナビリティ”のシルバーの評価を得ている。ソリッドなコア壁を東に向け、特に西面のヒート・ゲインを最小にするため、カーテンウォールをためて開き窓を使用。北側と南側ファサードの窓は、スカイ・チャペル、会衆ホール、教会オフィスにおける昼光と景色を最大にしている。建物の方位を巧みに決めることにより、牧師の住まいは自然換気で風通しがよくなっている。
 
喧騒な交差点に立つ「ウエスレイヤン・ハウス」は、質素・シンプル・洗練のイメージを目指したチャペル空間を生み出し、他方ワンチャイ・コミュニティにとっての精神的なオアシスとなっている。
 
クィーンズ・ロード・イースト側はカーブした壁面で、背後の四角いタワーはオフィスや牧師の住宅が入っている。

ケネディ・ロード越しに見たワイドに解放されたエントランス部分。2階の十字架部分がメイン・チャペル。

エントランスを入ったところにあるオープンなパブリック・プラザ。カリヨンからの音を聞きながら進入し、礼拝への心の準備をする。

メイン・チャペルの祭壇を見る。高さ8mの曲面壁に穿たれた十字架はケネディ・ロードに面している。トップライトからの清らかな自然光が降る。

メイン・チャペルの入口方向を見る。2階に会衆ホールが用意されている。木製パネルにより音を吸収する。

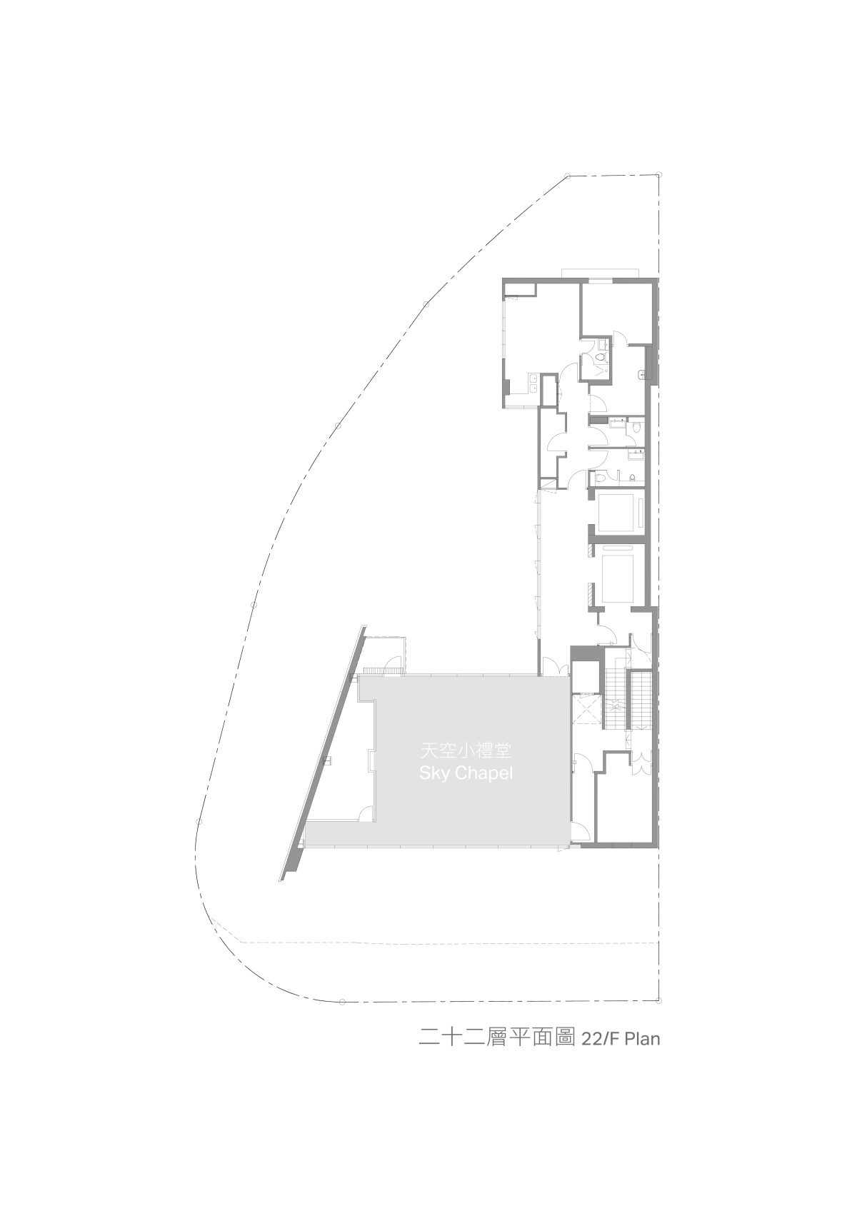
最上階のスカイ・チャペルは祭壇の両側がワイドな開口部で明るく、香港の景色が見晴らせる。

曲面形の大きな開口部から、香港の超高層ビル群という都市の表情を感じながら礼拝出来るユニークなチャペルだ。

夜景のエントランス周り。清楚な十字架の下にワイドに開いたエントランスは抵抗なく入り易そうだ。

1階平面図

2階平面図

22階平面図

断面図

Rocco Yim
Portrait: Rocco Design Architects
 
 
Photos by Rocco Design Architects
Drawings by Rocco Design Architects
 
Design: Rocco Design Architects
設 計:ロッコ・デザイン・アーキテクツ
著者プロフィール

淵上正幸 Masayuki Fuchigami
 
建築ジャーナリスト。東京外国語大学フランス語学科卒。2018年日本建築学会文化賞受賞。建築・デザイン関連のコーディネーター、書籍や雑誌の企画・編集・執筆、建築家インタビュー、建築講演や海外建築視察ツアーの企画・講師などを手掛ける。主著に『ヨーロッパ建築案内』1~3巻(TOTO出版)、『アメリカ建築案内』1~2巻(TOTO出版)、『世界の建築家51人:コンセプトと作品』(ADP出版)その他がある。